Matera Sud: L’Esclusività di Borgo San Francesco!!
8728
ID Proprietà
114 m2
Superficie
3
Camere da letto
2
Bagni
Descrizione
L’agenzia immobiliare MaterHouse propone in vendita, nella rinomata zona Sud di Matera, precisamente nel suggestivo contesto di Borgo San Francesco, un’esclusiva unità abitativa che fonde design d’avanguardia e natura. La vera “chicca” di questo intervento è lo spettacolare panorama: una distesa immensa di verde che abbraccia l’intero complesso residenziale, offrendo una rarissima sensazione di libertà e silenzio assoluto.
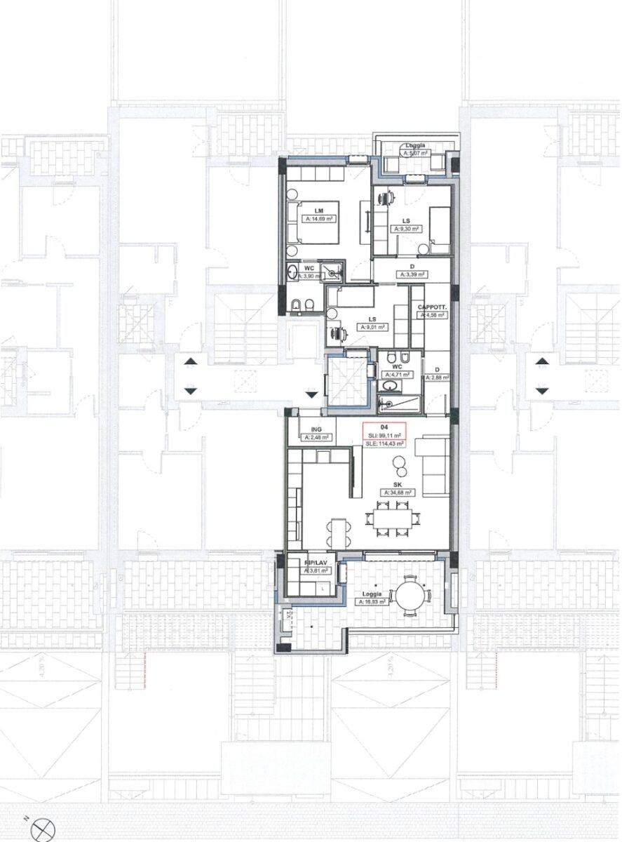
L’immobile, con consegna prevista per fine 2027, è situato al primo piano e si sviluppa su una superficie complessiva di 114,43 mq. La soluzione vanta il privilegio di una distribuzione degli spazi esterni senza precedenti: un ampio terrazzo a servizio della zona giorno, ideale per i momenti di convivialità all’aperto e per godere della vista, e un funzionale balconcino dedicato alla zona notte, che garantisce un affaccio privato e riservato, creando un’oasi di relax totale immersa nel silenzio.
Progettata secondo la filosofia Full-Electric, la residenza assicura il massimo risparmio energetico in Classe A4. Il comfort termico è garantito da una pompa di calore autonoma per riscaldamento e raffrescamento a pannelli radianti, integrata da un sistema di deumidificazione canalizzato e impianto fotovoltaico dedicato. L’attenzione tecnica è maniacale: struttura antisismica, isolamento a cappotto ad alte prestazioni e un sistema di insonorizzazione all’avanguardia sotto ogni massetto. Gli infissi in PVC con vetrocamera basso-emissivo e le tapparelle motorizzate completano un involucro edilizio impeccabile.
All’interno, le finiture di pregio sono personalizzabili: dai pavimenti in gres alle porte di design, ogni dettaglio riflette l’alta qualità costruttiva del progetto. Può completare la soluzione l’acquisto di un comodo box auto con serranda automatizzata. Vivere a Borgo San Francesco significa scegliere un’abitazione tecnologicamente proiettata nel futuro, immersa nel verde senza rinunciare ai servizi. Un acquisto unico per chi cerca l’eccellenza nel panorama lucano.
Indirizzo
- Country: Italia
- Province / State: Matera
- Postal code / ZIP: 75100
- ID Proprietà 8728
- Prezzo 355,000€
- Categria Proprietà Appartamenti- Nuova Costruzione
- Rooms 1
- Camere da letto 3
- Bagni 2
- Anno di Costruzione 2025
- Superficie 114 m2
- Etichetta Vendita
- Giardino no
- Posizione Zona sud Matera



