Appartamento con terrazzo panoramico

8656

ID Proprietà

100 m2

Superficie

2

Camere da letto

1

Bagno

Descrizione

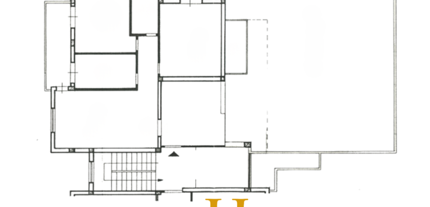
In Via Vincenzo Paradiso 8, all’interno di un riservato recinto condominiale, proponiamo in vendita un appartamento al 3° piano, di uno stabile privo di ascensore, che si distingue per la sua eccezionale tripla esposizione e un terrazzo di ampie dimensioni con vista panoramica. Lo Stato Attuale: Fascino e Solidità L’appartamento si presenta con spazi ampi e ariosi: Zona Giorno: Un grande salone con pavimentazione in marmo scuro venato e una cucina abitabile separata con balcone. Zona Notte: Due camere matrimoniali generose e un bagno principale spazioso. Il Terrazzo: Un affaccio panoramico di ampia metratura, vero cuore della casa, ideale per chi cerca uno sfogo esterno privato e silenzioso. L’Alternativa Moderna: Un Progetto Già Pronto Per chi desidera una suddivisione degli spazi più contemporanei, abbiamo già studiato un’ipotesi di restyling che permette di trasformare la casa in un quadrilocale con 3 camere e 2 bagni, creando un unico grande Open Space verso il terrazzo. Il Vantaggio Che Non Ti Aspetti: Ristrutturare Conviene! Ristrutturare o ammodernare questa casa potrebbe costarti molto meno di quanto immagini. Esistono soluzioni finanziarie e incentivi — tra cui rimborsi diretti tramite bonifico per i nuovi impianti — che rendono questo investimento incredibilmente vantaggioso. Non limitarti a guardare le foto: chiamaci per scoprire come puoi recuperare gran parte della spesa e trasformare questa casa nel tuo capolavoro senza pensieri. ? Contattaci subito per una visita. Durante il sopralluogo ti illustreremo il progetto di restyling e tutti i vantaggi economici esclusivi legati a questo immobile.

Indirizzo

Indirizzo: Via Eustachio Vincenzo Paradiso
  • Country: Italia
  • Province / State: Matera
  • Postal code / ZIP: 75100
Aprire in Google Maps
  • ID Proprietà 8656
  • Prezzo 178,000€
  • Categria Proprietà
  • Rooms 3
  • Camere da letto 2
  • Bagni 1
  • Anno di Costruzione 1970
  • Superficie 100 m2
  • Etichetta
  • Giardino no
  • Posizione Zona sud Matera

Calcola Indicazioni Stradali

Contatto

Ratings & Reviews

0 0 Reviews
  • 5 0 %
  • 4 0 %
  • 3 0 %
  • 2 0 %
  • 1 0 %

0 Reviews

Immobili simili